高崎市棟高町 中古戸建住宅

価格 2,400万円

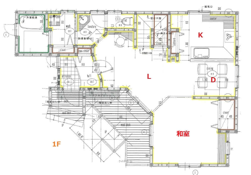
1/84
Point

※堤ケ岡小学校(徒歩約6分) ※群馬南中学校(徒歩約16分)
★三国街道近く 静かな住宅街 西道路
★住みやすく心地よい暮らし breathハウス施工
★LDK+和室は開放感たっぷり
★機能性と実用性を備えたキッチンは使いやすいL字型&対面なので動線ラクラク
★洗面台はタイル張りの丸型
★洗面所・脱衣所・お風呂に窓付き。通気良好です
★人気のリビング階段
★2階洋室は三面採光。お部屋の奥まで日が差込み、室内明るく通気も良好
★2階西側の洋室は、ロフト付き
★2階西側の洋室は、仕切りをして2部屋になります
★駐車場は2台可。駐車ラクラク。並列駐車
★エアコン2台付き
★上水道・下水道・プロパンガス
★イオンモール高崎自動車約3分
★現況販売

物件番号「13635」をお伝えください。

電話でお問合せ LINEでお問合せ

物件情報

価格 2,400万円
間取 3LDK
間取詳細 (1F)和、LDK、(2F)洋、洋、ロフト
所在地
群馬県高崎市棟高町 地図
学区 堤ケ岡小学校 500m/群馬南中学校 1,300m
最寄施設 JR上越線(両毛線) 井野駅 徒歩54分 4,300m
種目 中古戸建住宅
土地面積 209.99m²
建物面積 103.39m²
建ぺい率 50%
容積率 100%
建物構造 木造
地目 宅地
土地権利 所有権
借地料 -
用途地域 第一種中高層住居専用地域
取引態様 専任媒介
築年月 2004/11
引渡時期 即時
諸費用
接道 西 6m(幅員) 公道
セットバック
特色 ★公営水道、★公共本下水、★プロパンガス、整形地、日当り良好、駐車場2台以上、3口以上コンロ、カウンターキッチン、システムキッチン、カップボード、モニター付インターホン、バス1坪以上、追焚機能、トイレ2ケ所、温水洗浄便座、トイレ収納、カーテン、カーテンレール、南バルコニー、外水道、外構付き、ウッドデッキ、★洪水浸水想定区域:なし、現況渡し、エアコン、エアコン2台以上
周辺環境 ★高崎市棟高町の中古戸建住宅
●堤ケ岡幼稚園まで徒歩約750m(約9分)
●堤ケ岡保育園まで徒歩約700m(約9分)
●セブンイレブンまで徒歩約1200m(約15分)
●とりせんまで徒歩約1300m(約16分)
●イオンモール高崎まで徒歩約1400m(約18分)
●群馬中泉郵便局まで徒歩約1200m(約15分)
●ニコ内科クリニックまで徒歩約3,000

更新情報

情報更新日 2026年03月16日
次回更新予定日 2026年03月17日
取引条件有効期限 2026年03月22日

物件番号「13635」をお伝えください。

電話でお問合せ LINEでお問合せ
電話 メール LINE
メールでお問合せ
OK