|
||||||
| 種目 | 所在地 | 土地面積 建物面積 |
構造 間取 |
築年月 引渡時期 |
土地権利 | |
|---|---|---|---|---|---|---|
| 中古戸建住宅 | 群馬県高崎市棟高町 | 209.99m2 ( 63.52坪 ) 103.39m2 ( 31.27坪 ) |
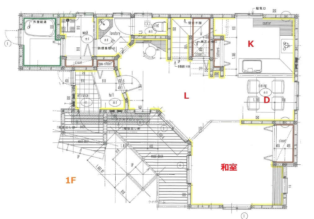
木造 3LDK |
H16/11 即時 |
所有権 | |
※堤ケ岡小学校(徒歩約6分) ※群馬南中学校(徒歩約16分)
★三国街道近く 静かな住宅街 西道路
★住みやすく心地よい暮らし breathハウス施工
★LDK+和室は開放感たっぷり
★機能性と実用性を備えたキッチンは使いやすいL字型&対面なので動線ラクラク
★洗面台はタイル張りの丸型
★洗面所・脱衣所・お風呂に窓付き。通気良好です
★人気のリビング階段
★2階洋室は三面採光。お部屋の奥まで日が差込み、室内明るく通気も良好
★2階西側の洋室は、ロフト付き
★2階西側の洋室は、仕切りをして2部屋になります
★駐車場は2台可。駐車ラクラク。並列駐車
★エアコン2台付き
★上水道・下水道・プロパンガス
★イオンモール高崎自動車約3分
★現況販売
| 周辺環境 | ★高崎市棟高町の中古戸建住宅 ●堤ケ岡幼稚園まで徒歩約750m(約9分) ●堤ケ岡保育園まで徒歩約700m(約9分) ●セブンイレブンまで徒歩約1200m(約15分) ●とりせんまで徒歩約1300m(約16分) ●イオンモール高崎まで徒歩約1400m(約18分) ●群馬中泉郵便局まで徒歩約1200m(約15分) ●ニコ内科クリニックまで徒歩約3,000 |
|||||||||||||||||
|---|---|---|---|---|---|---|---|---|---|---|---|---|---|---|---|---|---|---|
| 物件番号 | Bk13635 | |||||||||||||||||
| エリア | 旧群馬町エリア 高崎市堤ケ岡小学校 高崎群馬南中学校 |
学区 | 小学校区:堤ケ岡小学校 500m 中学校区:群馬南中学校 1300m |
|||||||||||||||
| 建ぺい率 | 50% | 容積率 | 100% | |||||||||||||||
| 地目 | 宅地 | 用途地域 | 第一種中高層住居専用地域 | |||||||||||||||
| 取引態様 | 専任媒介 | 私道面積 | ||||||||||||||||
| 借地料 | 間取詳細 | (1F)和、LDK、(2F)洋、洋、ロフト | ||||||||||||||||
| 接道 | 西 6m(幅員) 公道 | |||||||||||||||||
| セットバック | ||||||||||||||||||
| 特色 | ★公営水道、★公共本下水、★プロパンガス、整形地、日当り良好、駐車場2台以上、3口以上コンロ、カウンターキッチン、システムキッチン、カップボード、モニター付インターホン、バス1坪以上、追焚機能、トイレ2ケ所、温水洗浄便座、トイレ収納、カーテン、カーテンレール、南バルコニー、外水道、外構付き、ウッドデッキ、★洪水浸水想定区域:なし、現況渡し、エアコン、エアコン2台以上 | |||||||||||||||||
|
ローンを組むにあたり、月々の返済額をシミュレーションします。
|
||||||||||||||||||
地図
|
地図を右クリックでルート検索が可能です。
|
位置情報に関するご注意:現在位置情報は精査中の為、正確ではない場合があります。あくまで参考程度の情報となります。
![]()
- 株式会社 K・ドリーム
- TEL:027-386-3017
- FAX:027-386-3018
- >>関連の地域・地区から検索
- 物件一覧 -- 高崎市 旧群馬町エリア -- 間取一覧 -- 写真一覧 -- 地図一覧 -- 地域一覧
- 物件一覧 -- 高崎市小学校 高崎市堤ケ岡小学校 -- 間取一覧 -- 写真一覧 -- 地図一覧 -- 地域一覧
- 物件一覧 -- 高崎市中学校 高崎群馬南中学校 -- 間取一覧 -- 写真一覧 -- 地図一覧 -- 地域一覧
- 株式会社K・ドリーム
- 高崎市・玉村町・藤岡市で不動産を探すなら(株)K・ドリームにおまかせください。
- 株式会社K・ドリーム
- 高崎市・玉村町・藤岡市で不動産を探すなら(株)K・ドリームにおまかせください。




















































































